Italiano
410.000 €

Treviso, S.M.R. NUOVA COSTRUZIONE. ULTIME DUE UNITA' DISPONIBILI

Appartamento in vendita • Treviso
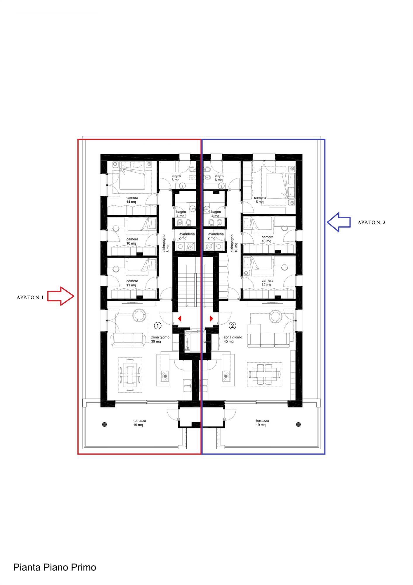
Treviso, Santa Maria del Rovere. In nuovo contesto di sole 6 unità abitative, disponiamo di ultime due unità al piano nobile, comprensive di garage, un posto auto coperto ed uno scoperto al piano terra. Le abitazioni si sviluppano al piano primo e sono composte da: ingresso, ampio soggiorno con cucina a vista e con vetrata su terrazza vivibile, tre camere, doppi servizi e lavanderia. L'appartamento è dotato di riscaldamento a pavimento alimentato da pompa di calore, viene consegnato completo di impianto condizionamento e ventilazione meccanica canalizzata inclusa. Serramenti in legno triplo vetro. Domotica. Impianto fotovoltaico 3 KW. Classe energetica in A4. Pronta consegna.
Disponibili app.to n. 1 (contrassegnato con il rosso nelle planimetrie), compreso di un garage, 1 posto auto coperto e 1 posto auto scoperto: € 410.000,00 + iva ;
app.to n. 2 (contrassegnato con il blu nelle planimetrie), compreso di un garage, 1 posto auto coperto e 1 posto auto scoperto: € 470.000,00 + iva
Rif. 216. - STUDIO IMMOBILMARCA -
Studio Immobilmarca è un'agenzia di intermediazione immobiliare formata da professionisti contraddistinti da un'esperienza pluriennale nel settore, che operano con dedizione, prestando attenzione alle esigenze del cliente.
La nostra agenzia tratta la compravendita e la locazione di qualsiasi tipologia di immobile, siano essi appartamenti, ville, rustici, uffici, capannoni o locali commerciali, effettuando sugli stessi perizie di stima e valutazioni professionali.
Studio Immobilmarca è attiva nella provincia di Treviso e nella provincia di Venezia, grazie alle sue tre sedi. Più precisamente, è presente a Dosson di Casier, via Archimede 2/i; a Venezia Mestre, zona Carpenedo, via San Donà 23, a Spinea, via E. Fermi 5 e Treviso in Via Ellero 14.
In aggiunta, la nostra agenzia è in grado di concedere assistenza in ambito finanziario per l'erogazione di mutui con l'aiuto di competenti consulenti del credito.
Caratteristiche principali
Codice
216
Città
Treviso
Categoria
Appartamento
Prezzo
410.000 €
Locali
5
Camere
3
Bagni
2
Mq
131
Box
1
Mq Box
18
Posti auto
1
Terrazzi
1
mq Terrazzo
19
Piano
1
Classe energetica
A4
Stato Immobile
Nuovo
Grado
Signorile
Orientamento
Sud Ovest
Lati Liberi
3
Giardino
Comune
Arredi
Non Arredato
Tipo Soggiorno
Soggiorno
Tipo Cucina
A Vista
Riscaldamento
Autonomo
Tipo Riscaldam.
Pompa di Calore
Tipo Impianto
Pavimento
Fonte Energetica
Elettrico
Acqua Calda
Autonoma
Infissi
PVC Triplo Vetro
Serramenti
Nuovo
Persiana
Tapparella PVC
Accesso Disabili
Nessuna Barriera
Accesso interno disabili
Pieno accesso
Impianto d’irrigazione
Si
VMC
Si

Accessori: Antifurto, Aria Condizionata, Ascensore, Cancello Elettrico, Fibra Ottica, Impianto Domotica, Impianto Fotovoltaico, Lavanderia, Passaggio Automobilistico, Passaggio Pedonale, Porta Blindata, Ripostiglio, Tapparelle Elettriche, Tripli Vetri, Video Citofono, Zanzariere

Condividi su
Cookie preference